Ce site web est optimisé pour les écrans larges, car il s'agit de naviguer sur des plans. Vous pouvez ajuster le zoom avec [Ctrl] [-] et [Ctrl] [+]

Présentation du projet

Nous proposons des plateaux constitués de lots de chambres allant de 65 à 400 m2 . A l’aide des services de notre architecte* vous pourrez créer votre appartement en adaptant les volumes et l’aménagement au plus prêt de vos souhaits.

Ainsi, vous repensez tout votre espace ou conservez les chambres qui vous conviennent. Ces dernières disposent toutes d’une salle de bain et de toilettes. Vous pourrez les décorer à votre goût et repenser le volume séjour-salon.

Laissez libre court à votre créativité pour concevoir le cocon de vos rêves sur mesure !

En confiant à l’architecte le choix des entrepreneurs et le suivi de la réalisation des travaux, vous bénéficiez d’une solution confortable, sans contraintes et sans frais de promotion.

Découvrez
notre projet et ses environs
sur rendez-vous

M'inscrire pour venir visiter

L'Hotel CARLIT se transforme en appartements de standing


Pour profiter pleinement de ce site, il est recommandé d'utiliser un écran large plutôt qu'un smartphone car il faut visualiser des plans.
Connectez-vous sur :
https://studimo.fr
pour voir ledit site web.
Merci de votre compréhension.

POUR NOUS CONTACTER :

8 Av. d'Espagne,
66120 Font-Romeu-Odeillo-Via
contact@studimo.fr
06 85 73 57 77

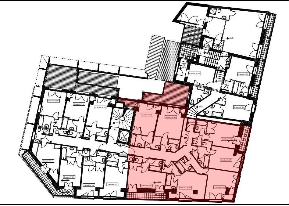
Lots du troisème étage

Chambre 301

Chambre 301

Chambre 302

Chambre 302

Chambre 303

Chambre 303

Chambre 304

Chambre 304

Chambre 305

Chambre 305

Chambre 306

Chambre 306

Chambre 307

Chambre 307

Chambre 308

Chambre 308

Chambre 309

Chambre 309

Chambre 310

Chambre 310

Chambre 311

Chambre 311

Chambre 312

Chambre 312

Chambre 313

Chambre 313

Chambre 314

Chambre 314

Chambre 315

Chambre 315

Chambre 316

Chambre 316

Chambre 317

Chambre 317
  • Chambre 301

    Chambre 301
  • Chambre 302

    Chambre 302
  • Chambre 303

    Chambre 303
  • Chambre 304

    Chambre 304
  • Chambre 305

    Chambre 305
  • Chambre 306

    Chambre 306
  • Chambre 307

    Chambre 307
  • Chambre 308

    Chambre 308
  • Chambre 309

    Chambre 309
  • Chambre 310

    Chambre 310
  • Chambre 311

    Chambre 311
  • Chambre 312

    Chambre 312
  • Chambre 313

    Chambre 313
  • Chambre 314

    Chambre 314
  • Chambre 315

    Chambre 315
  • Chambre 316

    Chambre 316
  • Chambre 317

    Chambre 317


    Les lots suivants m'intéresse :

    Form by ChronoForms - ChronoEngine.com

    DES ATOUTS PÉRENNES POUR DEMAIN

    En investissant dans un plateau aménageable, vous avez la possibilité d’agencer votre espace à souhait. Vous pourrez profiter d’un intérieur flambant neuf, tout en conservant le cachet et l’authenticité d’un édifice chargé d’histoire. Le Carlit fait l’objet de rénovations approfondies en phase avec les standards réglementaires sur le plan énergétique et du confort. Des atouts pour aujourd’hui, pérennes pour demain

    Investir dans une copropriété ayant fait l’objet d’une rénovation en vue d’accroitre sa performance énergétique permet de limiter vos dépenses. Vous augmentez durablement votre confort par l’amélioration de l’insonorisation, de la stabilité thermique et de la qualité de l’air.

    Les travaux sont couverts par les garanties décennales qui apportent un gage de tranquillité.
    En outre, votre bien immobilier bénéficiera d’une meilleure note au Diagnostic de Performance Énergétique (DPE), augmentant ainsi sa valeur et ses atouts en cas de revente.

    Un emplacement privilégié